Tiệm vàng hiện đại không chỉ cần trưng bày sản phẩm bắt mắt, mà còn phải thể hiện được đẳng cấp và uy tín của thương hiệu. Thiết kế tiệm vàng Kim Thanh của chị Huyền tại Cao Bằng được triển khai với định hướng rõ ràng tối ưu diện tích, đảm bảo công năng và tôn vinh giá trị sản phẩm. Từng mảng tường, hệ tủ trưng bày, ánh sáng và màu sắc được phối hợp hài hòa thể hiện gu thẩm mỹ và sự chuyên nghiệp của chủ đầu tư.
Chủ đầu tư: Chị Huyền
Địa điểm: Cao Bằng
Diện tích : 40m2
Nội dung: Thiết kế tiệm vàng
Hiện trạng trước thi công
.jpg)
.jpg)
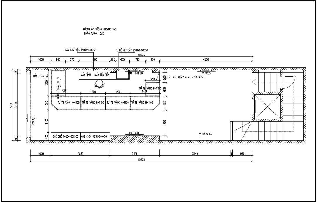
Mặt bằng công năng
.png)
Tiệm vàng có diện tích 40m2 không quá lớn, nhưng lại được thiết kế để tạo cảm giác rộng rãi và thoáng đãng. Tông màu chủ đạo là nâu trầm, vàng sáng và trắng mang đậm hơi hướng sang trọng, tinh tế và chuẩn mực trong lĩnh vực kinh doanh vàng bạc.
Các nhà thiết kế đã lựa chọn phong cách hiện đại pha chút cổ điển nhẹ, tạo nên một không gian vừa đẳng cấp, vừa gần gũi. Vật liệu sử dụng chủ yếu là gỗ công nghiệp phủ veneer kết hợp inox mạ vàng và kính cường lực, mang lại cảm giác bền bỉ, sáng bóng, giúp tăng giá trị thẩm mỹ cho toàn bộ không gian.
.jpg)
Trung tâm không gian là hệ tủ kính trưng bày sản phẩm được bố trí song song, chia lối đi giữa vừa đủ thoáng để khách hàng di chuyển, vừa thuận tiện cho nhân viên giao tiếp và giới thiệu sản phẩm. Các tủ kính được thiết kế với phần khung inox mạ vàng, chân gỗ màu nâu trầm, mặt kính cường lực trong suốt chắc chắn và sang trọng.
.jpg)
Bên trong, mỗi khu vực trưng bày được sắp đặt khoa học, các mẫu nhẫn, dây chuyền, lắc tay, bông tai được đặt trên khay lót nhung trắng sáng, giúp tôn bật từng chi tiết của sản phẩm. Đây là điểm quan trọng trong thiết kế tiệm vàng, bởi ánh sáng và nền trung tính giúp khách hàng dễ dàng quan sát chất liệu và màu sắc thật của vàng, bạc, đá quý.
.jpg)
Trần nhà sử dụng thiết kế giật cấp kết hợp đèn led âm trần và dải viền inox ánh vàng, tạo hiệu ứng phản chiếu ánh sáng đồng đều. Cách phối hợp giữa ánh sáng trắng và vàng nhẹ giúp không gian trở nên rực rỡ, nhưng vẫn giữ được cảm giác ấm áp và gần gũi.
.jpg)
Thiết kế được chia làm ba khu vực chính:
Cách bố trí khoa học này giúp nhân viên có thể di chuyển nhanh giữa các vị trí, tối ưu thời gian phục vụ, đồng thời giảm thiểu rủi ro khi giao dịch với sản phẩm giá trị cao như vàng bạc, đá quý.
.jpg)
Trong các thiết kế tiệm vàng, ánh sáng đóng vai trò vô cùng quan trọng. Tại dự án thiết kế tiệm vàng Kim Thanh, hệ thống đèn led rọi sản phẩm, đèn trần giật cấp và ánh sáng hắt tường được tính toán kỹ lưỡng. Ánh sáng vàng dịu làm nổi bật màu sắc của sản phẩm, tăng độ lung linh và hấp dẫn cho từng món trang sức. Ngoài ra, việc sử dụng ánh sáng phản chiếu từ các bề mặt kính và inox giúp không gian thêm phần rộng mở.
Các vật liệu sử dụng trong tiệm vàng đều được lựa chọn dựa trên tiêu chí bền, đẹp, sang trọng, dễ vệ sinh. Cụ thể:
.jpg)
Tủ trưng bày: kết hợp gỗ MDF chống ẩm phủ laminate cao cấp và kính cường lực trong suốt.
Viền inox mạ vàng: giúp tăng độ sáng bóng và tạo hiệu ứng cao cấp.
Tường ốp gỗ công nghiệp: tạo cảm giác ấm áp, gần gũi, đồng thời dễ dàng vệ sinh, bảo dưỡng.
Sàn gạch marble trắng vân mây: tăng tính thẩm mỹ và giúp phản sáng hiệu quả.
Sự phối hợp hài hòa giữa các vật liệu này không chỉ nâng cao giá trị thẩm mỹ mà còn đảm bảo tuổi thọ công trình, đặc biệt phù hợp với môi trường kinh doanh vàng bạc đòi hỏi sự chỉn chu và bền vững.
Màu sắc chủ đạo nâu, vàng kim, trắng được lựa chọn không chỉ vì yếu tố thẩm mỹ, mà còn hàm chứa ý nghĩa phong thủy tích cực. Theo quan niệm Á Đông, màu vàng tượng trưng cho sự giàu sang và thịnh vượng, trong khi màu nâu gỗ mang lại cảm giác vững chắc, ổn định.
Ngoài ra, hệ thống đèn và vị trí quầy được bố trí hợp lý theo hướng đón sáng tự nhiên từ mặt tiền, giúp không gian luôn thông thoáng, tạo cảm giác thoải mái cho khách hàng khi mua sắm.
Trên đây là những điểm nổi bật của mẫu thiết kế tiệm vàng Kim Thanh tại Cao Bằng. Nếu bạn cần tư vấn thêm về các ý tưởng không gian khác, hãy liên hệ với chúng tôi.
Tư vấn thiết kế tiệm vàng, trang sức, kim cương




A. Châu Anh có hệ thống chi nhánh văn phòng và xưởng sản xuất ở nhiều nơi trên toàn quốc, nên giá thành sản phẩm là giá xuất xưởng, cạnh tranh nhằm đảm bảo chất lượng và dịch vụ phục vụ Khách hàng tốt nhất.
A: Châu Anh cung cấp dịch vụ tới mọi thành phần kinh tế, chúng tôi cung cấp dịch vụ thiết kế, thi công và bán lẻ các mặt hàng nội thất.
- Với các sản phẩm khách hàng đã có bản vẽ 2D hoặc 3D: Châu Anh sẽ phân tích bản vẽ và báo giá cạnh tranh.
- Với các sản phẩm cần thiết kế chi tiết: Châu Anh sẽ báo giá từ thiết kế đến thi công.
- Với những khách hàng mua hàng có sẵn với số lượng lớn: vui lòng liên hệ để nhận báo giá cạnh tranh.
- Đối với các Showroom có diện tích trưng bày sản phẩm rộng lớn: Châu Anh có khung giá phù hợp với ngân sách của khách hàng.

