Giới thiệu tổng quan dự án
Chủ đầu tư: Lê Tùng
Địa điểm: Sơn Tây, Hà Nội
Diện tích: 21m2
Hạng mục: Thiết kế tiệm vàng Toàn Lan
Việc đầu tư cải tạo không gian trưng bày trở thành yếu tố quyết định giúp các cửa hàng khẳng định vị thế và thu hút khách hàng. Dự án thiết kế tiệm vàng Toàn Lan tại Sơn Tây, Hà Nội có diện tích chỉ 21m2 được tái cấu trúc hoàn toàn, mang lại diện mạo hiện đại.
Đội ngũ thiết kế đã tận dụng tối đa từng mét vuông diện tích để đảm bảo không gian vừa có tính thẩm mỹ cao, vừa thuận tiện trong trưng bày, vận hành và giao dịch. Đây chính là mẫu thiết kế lý tưởng dành cho các chủ đầu tư đang tìm kiếm giải pháp cải tạo tiệm vàng quy mô nhỏ nhưng cần hiệu quả nổi bật.
Hiện trạng trước thi công
.jpg)
.jpg)
.jpg)
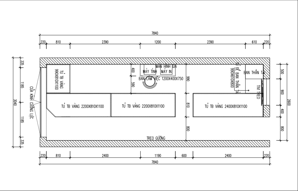
Mặt bằng công năng
.png)
Mục tiêu của dự án thiết kế tiệm vàng Toàn Lan là tạo nên một không gian kinh doanh vàng bạc sang trọng, thể hiện được uy tín và đẳng cấp thương hiệu. Với diện tích hạn chế, nhóm thiết kế lựa chọn phong cách hiện đại kết hợp vật liệu cao cấp, nhấn mạnh vào ánh sáng, màu sắc và chất liệu gỗ để tạo chiều sâu không gian.
.jpg)
Các chi tiết thiết kế tập trung vào việc gây ấn tượng thị giác mạnh ngay từ cửa vào, giúp khách hàng cảm nhận được sự tinh tế và chuyên nghiệp của tiệm vàng Toàn Lan. Màu vàng nâu chủ đạo tượng trưng cho sự thịnh vượng, đồng thời giúp làm nổi bật sản phẩm trưng bày trong tủ kính.
Không gian được tổ chức theo trục trung tâm đối xứng, với quầy trưng bày hai bên và lối đi giữa thoáng đãng, giúp khách hàng dễ dàng di chuyển và quan sát sản phẩm. Mỗi chi tiết đều được tính toán cẩn thận để đảm bảo vừa đủ công năng, vừa đạt tính thẩm mỹ cao.
Điểm nổi bật nhất trong không gian này là hệ thống quầy trưng bày vàng bạc được thiết kế đồng bộ, hiện đại. Mặt kính trong suốt, khung viền kim loại ánh vàng, kết hợp nền gỗ nâu sang trọng tạo nên sự tương phản nhẹ nhàng nhưng tinh tế.
.jpg)
Các tủ trưng bày được bố trí dọc hai bên lối đi chính, giúp khai thác tối đa diện tích sàn mà vẫn đảm bảo khoảng cách thuận tiện cho khách hàng. Mỗi tủ đều có hệ thống đèn LED chiếu sáng trực tiếp vào sản phẩm, giúp vàng bạc tỏa sáng rực rỡ, làm nổi bật từng chi tiết của món trang sức.
Phần chân tủ được xử lý bằng chất liệu gỗ laminate cao cấp với những đường viền vàng kim tinh tế. Sự phối hợp giữa gỗ và kim loại mang lại cảm giác chắc chắn, sang trọng mà vẫn giữ nét ấm cúng.
.jpg)
Không gian tiệm vàng Toàn Lan gây ấn tượng mạnh nhờ cách phối màu thông minh giữa tông gỗ sáng và điểm nhấn nâu đậm. Các mảng tường được ốp gỗ hoàn toàn, vừa mang lại cảm giác sang trọng, vừa giúp không gian ấm áp và gần gũi.
Trên nền gỗ, những chi tiết thanh nẹp dọc màu nâu sậm tạo hiệu ứng thị giác chiều cao, giúp không gian trở nên rộng rãi và thoáng đãng hơn. Đây là giải pháp thiết kế hiệu quả cho các cửa hàng có trần thấp hoặc diện tích hạn chế.
.jpg)
Trần nhà sử dụng hệ đèn âm trần kết hợp đèn viền ánh vàng mang lại ánh sáng dịu nhẹ, làm tôn lên màu sắc tự nhiên của gỗ và sản phẩm trưng bày. Phản chiếu ánh sáng trên bề mặt kính và kim loại giúp tiệm vàng luôn sáng bừng, tạo cảm giác cao cấp mà không cần sử dụng quá nhiều diện tích trang trí.
Ở vị trí trung tâm tường chính, bảng giá vàng được thiết kế nổi bật với nền đỏ chữ vàng vừa dễ nhìn, vừa thể hiện đúng tinh thần của ngành kim hoàn. Phía dưới là khu vực làm việc của nhân viên và máy tính giao dịch, bố trí gọn gàng, giúp thuận tiện trong việc cập nhật giá vàng và xử lý thông tin khách hàng.
Quầy giao dịch được tích hợp ngay sau khu vực trưng bày, đảm bảo luồng di chuyển hợp lý và tối ưu trải nghiệm mua sắm. Cách sắp xếp này không chỉ mang lại hiệu quả vận hành mà còn giúp nhân viên quan sát toàn bộ không gian dễ dàng, đảm bảo an toàn và kiểm soát tốt hàng hóa.
Một trong những điểm mạnh của dự án chính là giải pháp chiếu sáng thông minh. Ánh sáng trắng từ hệ thống đèn trần kết hợp ánh sáng vàng từ tủ trưng bày tạo hiệu ứng phản chiếu tinh tế, khiến không gian nhỏ trở nên sâu và rộng hơn.
Màu sàn trắng vân đá góp phần quan trọng trong việc tăng độ sáng và cân bằng màu sắc tổng thể, giúp tường và quầy trưng bày nổi bật hơn. Đây là lựa chọn lý tưởng cho các tiệm vàng nhỏ, bởi vừa mang tính thẩm mỹ cao vừa dễ vệ sinh và bền màu theo thời gian.
Toàn bộ thiết kế tiệm vàng Toàn Lan hướng tới việc xây dựng một hình ảnh thương hiệu chuyên nghiệp và sang trọng. Logo “Vàng Bạc Toàn Lan” được gắn trực tiếp lên mảng tường gỗ trung tâm, kết hợp ánh sáng hắt nhẹ từ trên xuống giúp tên thương hiệu nổi bật mà vẫn tinh tế.
Bức tranh quảng cáo sản phẩm được đặt ở vị trí dễ nhìn, tạo hiệu ứng trực quan mạnh mẽ cho khách hàng. Tông màu ấm áp của gỗ kết hợp với sắc vàng ánh kim và ánh sáng trắng mang đến cảm giác sang trọng, tin cậy – yếu tố quan trọng để khách hàng cảm nhận giá trị và uy tín của thương hiệu.
Mỗi chi tiết đều được tính toán theo nhu cầu thực tế, tạo nên không gian nhỏ gọn mà vẫn sang trọng và đầy đủ chức năng. Đây chính là điểm khác biệt giúp tiệm vàng Toàn Lan trở thành mẫu thiết kế đáng tham khảo cho các cửa hàng kinh doanh quy mô nhỏ đang muốn cải tạo lại không gian.
Dự án thiết kế tiệm vàng Toàn Lan tại Sơn Tây có phong cách hiện đại, tinh tế, tăng giá trị thương hiệu và lợi thế cạnh tranh cho chủ đầu tư. Đây là mô hình lý tưởng cho những ai đang tìm kiếm giải pháp cải tạo tiệm vàng chuyên nghiệp, hiệu quả và tiết kiệm chi phí.
Tư vấn thiết kế tiệm vàng, trang sức, kim cương




A. Châu Anh có hệ thống chi nhánh văn phòng và xưởng sản xuất ở nhiều nơi trên toàn quốc, nên giá thành sản phẩm là giá xuất xưởng, cạnh tranh nhằm đảm bảo chất lượng và dịch vụ phục vụ Khách hàng tốt nhất.
A: Châu Anh cung cấp dịch vụ tới mọi thành phần kinh tế, chúng tôi cung cấp dịch vụ thiết kế, thi công và bán lẻ các mặt hàng nội thất.
- Với các sản phẩm khách hàng đã có bản vẽ 2D hoặc 3D: Châu Anh sẽ phân tích bản vẽ và báo giá cạnh tranh.
- Với các sản phẩm cần thiết kế chi tiết: Châu Anh sẽ báo giá từ thiết kế đến thi công.
- Với những khách hàng mua hàng có sẵn với số lượng lớn: vui lòng liên hệ để nhận báo giá cạnh tranh.
- Đối với các Showroom có diện tích trưng bày sản phẩm rộng lớn: Châu Anh có khung giá phù hợp với ngân sách của khách hàng.

