Trong kinh doanh vàng bạc, không gian trưng bày không chỉ là nơi giao dịch mà còn là yếu tố khẳng định uy tín và giá trị thương hiệu. Với diện tích chỉ 20m², dự án thiết kế tiệm vàng Hải Dương tại Văn Phú, Hà Đông với giải pháp hợp lý mang đến không gian kinh doanh hiện đại và đầy cuốn hút.
Mục tiêu của dự án là tối ưu diện tích nhỏ nhưng vẫn thể hiện được đẳng cấp thương hiệu, đồng thời mang đến trải nghiệm mua sắm thoải mái và tin cậy cho khách hàng. Tiệm vàng Hải Dương lựa chọn phong cách hiện đại kết hợp sang trọng, sử dụng màu đỏ vàng ánh kim đặc trưng của ngành vàng bạc để tạo ấn tượng mạnh mẽ ngay từ mặt tiền.
Hiện trạng trước thi công
.jpg)
.jpg)
.jpg)
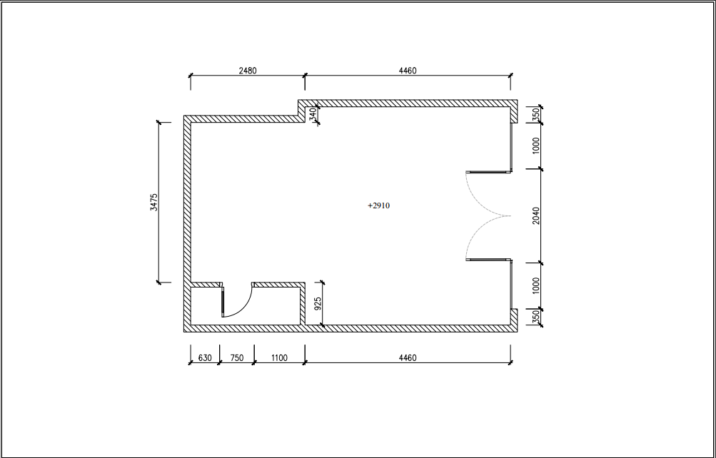
Mặt bằng công năng
.png)
Mặt tiền là yếu tố đầu tiên tạo dấu ấn cho khách hàng, đặc biệt trong ngành vàng bạc. Thiết kế của tiệm vàng Hải Dương nổi bật với bảng hiệu đỏ rực kết hợp viền vàng kim tinh tế, vừa thể hiện sự thịnh vượng, vừa gợi cảm giác tin cậy và chuyên nghiệp.
.jpg)
Chữ “VÀNG BẠC HẢI DƯƠNG” được thiết kế lớn, rõ ràng, sử dụng font chữ truyền thống chắc chắn, thể hiện uy tín lâu năm. Bên dưới là thông tin chi tiết về hai cơ sở kinh doanh, giúp khách hàng dễ dàng nhận diện và liên hệ.
Mặt kính lớn phía trước được thiết kế trong suốt, mở rộng tầm nhìn vào không gian bên trong.
Quầy trưng bày được thiết kế theo hình chữ L, giúp tận dụng tối đa diện tích góc, đồng thời tạo luồng di chuyển thuận tiện cho khách hàng. Chất liệu kính cường lực kết hợp viền inox vàng vừa đảm bảo an toàn, vừa tạo hiệu ứng sang trọng, phản chiếu ánh sáng đẹp mắt.
.jpg)
Mặt bàn sử dụng màu đỏ đậm, tương phản với nền trắng kem của tường và sàn, giúp làm nổi bật các sản phẩm trưng bày. Logo hình viên kim cương được đặt chính giữa quầy, tạo dấu ấn thương hiệu rõ nét.
.jpg)
Hai bên tường được bố trí tủ âm tường có đèn hắt sáng, trưng bày các mẫu trang sức cao cấp như dây chuyền, vòng cổ, nhẫn. Ánh sáng LED trắng tinh tế giúp tôn lên vẻ lấp lánh của sản phẩm, đồng thời tạo chiều sâu cho không gian.
.jpg)
Phía bên trái bố trí màn hình điện tử hiển thị giá vàng, giúp khách hàng cập nhật thông tin nhanh chóng, tăng độ tin cậy và chuyên nghiệp cho tiệm.
.jpg)
Dù diện tích hạn chế, nhưng PenViet vẫn dành một góc nhỏ bên phải để bố trí khu vực chờ cho khách hàng với hai ghế ngồi và bàn trà nhỏ. Mảng tường phía sau được ốp đá vân mây màu kem kết hợp chữ inox vàng, mang lại cảm giác sang trọng mà vẫn ấm cúng. Việc bổ sung cây xanh nhỏ giúp không gian bớt khô cứng, tạo điểm nhấn nhẹ nhàng và thân thiện.
Thiết kế sử dụng tông màu đỏ, trắng và vàng kim, mang ý nghĩa phong thủy tích cực trong kinh doanh vàng bạc. Đỏ tượng trưng cho may mắn, năng lượng và sự thịnh vượng. Vàng ánh kim gợi nhắc đến sự quý giá, sang trọng và lòng tin. Trắng sáng trung hòa tổng thể, tạo cảm giác sạch sẽ và hiện đại.
Sự kết hợp này không chỉ giúp tiệm vàng Hải Dương nổi bật giữa dãy phố mà còn thể hiện đúng tinh thần “Chữ tín quý hơn vàng”.
Bên cạnh đó, ánh sáng là yếu tố then chốt giúp các sản phẩm vàng bạc trở nên lấp lánh và thu hút. Trong thiết kế tiệm vàng Hải Dương, chúng tôi sử dụng ánh sáng trắng kết hợp ánh vàng nhẹ, phân bổ khoa học tại các khu vực:
Logo của Vàng bạc Hải Dương được ứng dụng xuyên suốt từ mặt tiền, quầy giao dịch đến khu vực trưng bày, giúp khách hàng dễ dàng nhận diện thương hiệu. Font chữ chắc chắn, màu vàng đồng ánh kim mang thông điệp về sự bền vững và uy tín. Đặc biệt, khẩu hiệu “Chữ tín quý hơn vàng” được bố trí nổi bật ở nhiều vị trí khác nhau, nhấn mạnh giá trị cốt lõi trong hoạt động kinh doanh tạo niềm tin vững chắc với khách hàng.
.jpg)
.jpg)
Với diện tích chỉ 20m², việc tổ chức không gian hợp lý là yếu tố quyết định thành công của dự án. Chúng tôi áp dụng nhiều giải pháp thiết kế thông minh:
Nhờ vậy, không gian nhỏ vẫn đảm bảo tính thẩm mỹ, công năng và trải nghiệm người dùng.
.jpg)
Dự án thiết kế tiệm vàng Hải Dương tại Văn Phú, Hà Đông có bảng hiệu nổi bật, bố cục hợp lý giúp thương hiệu khẳng định vị thế trong lĩnh vực kinh doanh vàng bạc. Hãy liên hệ với chúng tôi ngay hôm nay để được các chuyên gia tư vấn về ý tưởng setup không gian mới.
Tư vấn thiết kế tiệm vàng, trang sức, kim cương




A. Châu Anh có hệ thống chi nhánh văn phòng và xưởng sản xuất ở nhiều nơi trên toàn quốc, nên giá thành sản phẩm là giá xuất xưởng, cạnh tranh nhằm đảm bảo chất lượng và dịch vụ phục vụ Khách hàng tốt nhất.
A: Châu Anh cung cấp dịch vụ tới mọi thành phần kinh tế, chúng tôi cung cấp dịch vụ thiết kế, thi công và bán lẻ các mặt hàng nội thất.
- Với các sản phẩm khách hàng đã có bản vẽ 2D hoặc 3D: Châu Anh sẽ phân tích bản vẽ và báo giá cạnh tranh.
- Với các sản phẩm cần thiết kế chi tiết: Châu Anh sẽ báo giá từ thiết kế đến thi công.
- Với những khách hàng mua hàng có sẵn với số lượng lớn: vui lòng liên hệ để nhận báo giá cạnh tranh.
- Đối với các Showroom có diện tích trưng bày sản phẩm rộng lớn: Châu Anh có khung giá phù hợp với ngân sách của khách hàng.

