Thông tin dự án
Chủ đầu tư: Anh Lê Trường Giang
Địa điểm: Bình Dương
Diện tích : 60m2
Nội dung: Thiết kế tiệm vàng.
Hiện trạng trước thiết kế
.jpg)
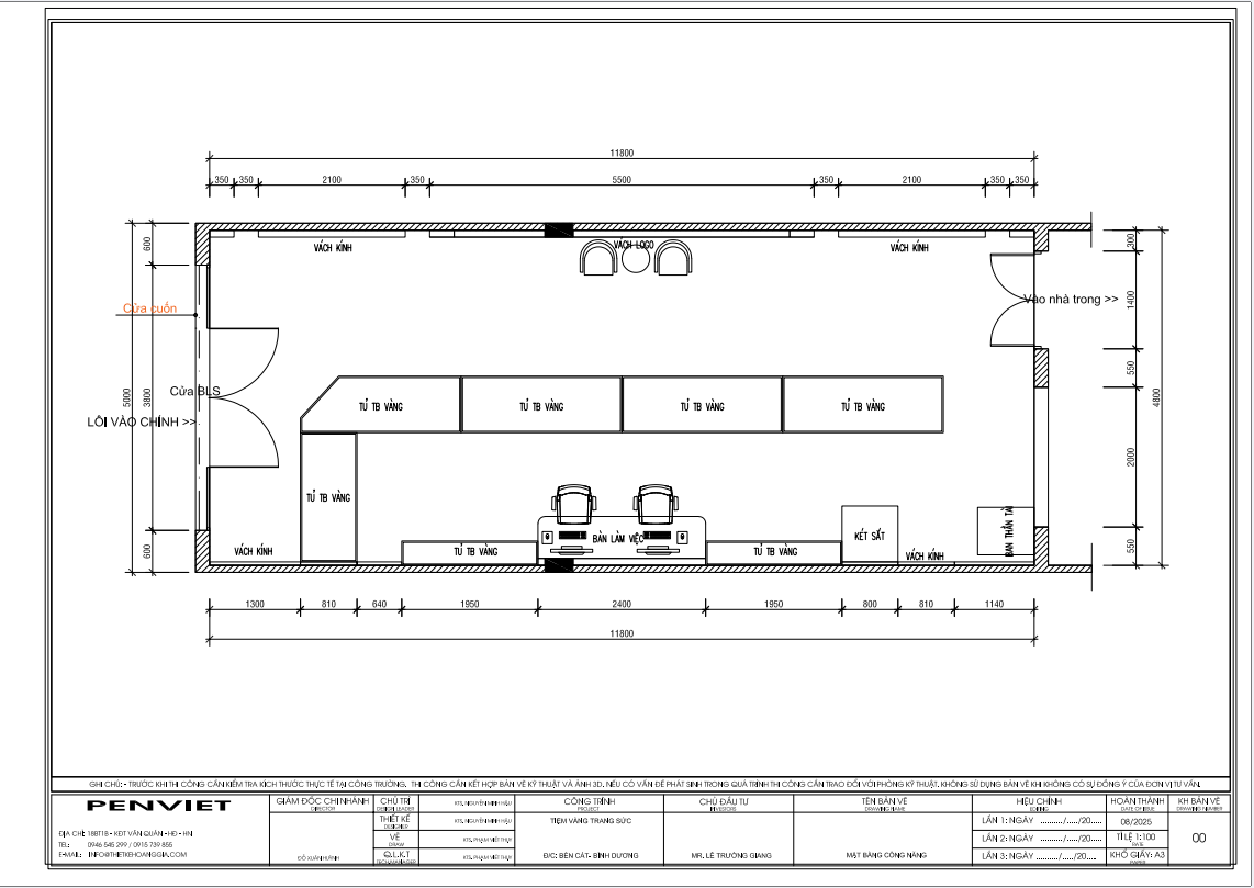
Mặt bằng công năng
.png)
Tiệm vàng Kim Ánh Dương là dự án được triển khai tại Bình Dương – khu vực đang phát triển mạnh mẽ về thương mại và dịch vụ. Với diện tích khoảng 60m², công trình được chủ đầu tư anh Lê Trường Giang giao cho đội ngũ thiết kế của PenViet thực hiện trọn gói.
.jpg)
Yêu cầu đặt ra là xây dựng một không gian mang phong cách hiện đại, sang trọng, tinh tế nhưng không phô trương, thể hiện rõ giá trị thương hiệu và sự uy tín của cửa hàng trong ngành trang sức. Không gian phải vừa thẩm mỹ cao, vừa đảm bảo công năng vận hành, an toàn và tạo trải nghiệm mua sắm chuyên nghiệp cho khách hàng.
Chuyên gia thiết kế chính của PenViet chia sẻ:
“Đối với tiệm vàng, ánh sáng, màu sắc và vật liệu là ba yếu tố quyết định cảm nhận đầu tiên của khách hàng. Mục tiêu của chúng tôi là khiến mọi chi tiết trong không gian này đều phản chiếu giá trị của sự tinh xảo, từ viên đá quý cho đến đường viền nội thất.”
Hình ảnh đầu tiên khi bước trên tuyến phố chính là mặt tiền với thiết kế biển hiệu vàng kim nổi bật trên nền đỏ sẫm. Hai gam màu chủ đạo này vừa mang tính biểu trưng của ngành trang sức. Màu vàng tượng trưng cho sự thịnh vượng, đỏ biểu trưng cho may mắn, tạo hiệu ứng thị giác mạnh mẽ thu hút khách hàng.
.jpg)
Các chi tiết khung viền mạ vàng và hệ thống chiếu sáng LED âm viền được tính toán kỹ lưỡng để ban đêm ánh sáng lan tỏa đều, làm nổi bật chữ nổi “Kim Ánh Dương”.
Kiến trúc sư PenViet nhận xét: “Chúng tôi chọn bố cục mặt tiền dạng khung đứng cao, vì đây là tỷ lệ phù hợp cho không gian thương mại nhỏ trong dãy phố liền kề. Cách bố trí này vừa giúp cửa hàng trông bề thế, vừa đảm bảo tầm nhìn từ xa rõ ràng.”
Ngay khi bước vào, khách hàng cảm nhận được sự sang trọng và tinh tế trong từng chi tiết. Tông màu chủ đạo bên trong là trắng sáng, ánh vàng và điểm nhấn đỏ đồng bộ hoàn toàn với mặt tiền để tạo sự thống nhất thương hiệu.
.jpg)
Hệ thống tủ kính trưng bày được thiết kế theo mô-đun đối xứng hai bên. Khung inox mạ vàng, mặt tủ đá trắng kết hợp kính cường lực trong suốt giúp ánh sáng phản chiếu lên từng sản phẩm.
Ánh sáng LED trong tủ được lắp ẩn góc chiếu 45°, giúp bề mặt vàng và đá quý lấp lánh tự nhiên mà không gây chói mắt. Khoảng cách giữa các tủ vừa đủ cho hai người di chuyển cùng lúc, đảm bảo trải nghiệm mua sắm thoải mái.
.jpg)
Quầy đóng vai trò vừa là điểm giao dịch, vừa là trung tâm nhận diện thương hiệu. Bề mặt quầy sử dụng kính cường lực, viền cạnh mạ vàng ánh kim, phía sau là vách logo Kim Ánh Dương nổi bật với tông đỏ đậm và hệ đèn chiếu hắt. Vị trí quầy được tính toán hợp lý, từ lối vào, khách hàng dễ dàng quan sát tổng thể không gian và nhận thấy logo ở vị trí trung tâm.
.jpg)
Không gian phía sau quầy có hệ tủ bảo mật và khu vực kỹ thuật được bố trí kín đáo, đảm bảo an toàn mà vẫn tiện thao tác cho nhân viên.
.jpg)
Chuyên gia PenViet phân tích: “Bố trí quầy như vậy giúp nhân viên dễ quan sát toàn bộ cửa hàng, đồng thời đảm bảo khoảng cách an toàn giữa khu khách và khu giao dịch. Mọi chi tiết đều phục vụ mục tiêu: trải nghiệm sang trọng, nhưng vận hành hiệu quả.”
Không gian của thiết kế tiệm vàng Kim Ánh Dương được phối theo tông trắng, vàng kim, đỏ đô thể hiện năng lượng tích cực. Các mảng đỏ được dùng tiết chế, chỉ xuất hiện tại logo, vách sau quầy và một vài chi tiết trang trí, tạo điểm nhấn sang trọng mà không rối mắt.
.jpg)
Sự phản chiếu ánh sáng từ vật liệu bóng kính và inox mạ vàng khiến toàn bộ không gian rực rỡ, mang cảm giác “tỏa sáng như chính sản phẩm được trưng bày”.
.jpg)
Khác với phong cách cổ điển nhiều phào chỉ, công trình hướng đến hiện đại mềm mại, sử dụng đường bo tròn ở các góc tủ, viền quầy, trần và vách giúp không gian uyển chuyển, thân thiện hơn.
Tỷ lệ khối được tính toán theo nguyên tắc vàng tạo cảm giác cân bằng tự nhiên. Nhờ vậy, dù diện tích chỉ 60m², cửa hàng vẫn trông rộng rãi và cao cấp.
.jpg)
Trong ngành trang sức, trải nghiệm cảm xúc của khách hàng quan trọng không kém chất lượng sản phẩm. Thiết kế của PenViet hướng đến việc tạo cảm giác tin cậy và thoải mái cho khách ngay từ khoảnh khắc đầu tiên.
Khu vực chờ nhỏ bên cạnh quầy giao dịch có ghế bọc nhung màu be, đèn đọc nhỏ và bàn trà thấp. Gương lớn phản chiếu ánh sáng và nhân đôi không gian, đồng thời giúp khách dễ thử trang sức tại chỗ.
Chuyên gia của PenViet đánh giá, điểm nổi bật nhất của dự án Kim Ánh Dương nằm ở sự cân bằng giữa hình ảnh thương hiệu và công năng thực tế. Mọi chi tiết đều có lý do thiết kế rõ ràng, tỷ lệ bố trí hợp lý, tạo hành trình trải nghiệm mạch lạc cho khách hàng.
.jpg)
Dự án thiết kế tiệm vàng Kim Ánh Dương tại Bình Dương không chỉ là một công trình nội thất thương mại mà mà còn thể hiện bản sắc thương hiệu. Sự đầu tư chỉn chu tổng thể cho thấy tư duy thiết kế chuyên nghiệp của PenViet luôn đặt trải nghiệm khách hàng và hiệu quả kinh doanh lên hàng đầu.
Tư vấn thiết kế tiệm vàng, trang sức, kim cương




A. Châu Anh có hệ thống chi nhánh văn phòng và xưởng sản xuất ở nhiều nơi trên toàn quốc, nên giá thành sản phẩm là giá xuất xưởng, cạnh tranh nhằm đảm bảo chất lượng và dịch vụ phục vụ Khách hàng tốt nhất.
A: Châu Anh cung cấp dịch vụ tới mọi thành phần kinh tế, chúng tôi cung cấp dịch vụ thiết kế, thi công và bán lẻ các mặt hàng nội thất.
- Với các sản phẩm khách hàng đã có bản vẽ 2D hoặc 3D: Châu Anh sẽ phân tích bản vẽ và báo giá cạnh tranh.
- Với các sản phẩm cần thiết kế chi tiết: Châu Anh sẽ báo giá từ thiết kế đến thi công.
- Với những khách hàng mua hàng có sẵn với số lượng lớn: vui lòng liên hệ để nhận báo giá cạnh tranh.
- Đối với các Showroom có diện tích trưng bày sản phẩm rộng lớn: Châu Anh có khung giá phù hợp với ngân sách của khách hàng.

